Montabaur, Altbau-Charme – saniert! *VIRTUELLE 360° BESICHTIGUNG AUF ANFRAGE*
56410 Montabaur, Dachgeschosswohnung zur Miete
Kontaktdaten
-
NameHerr Jürgen Schmitt
-
AdresseAm Wolfsturm 6
56410 Montabaur -
E-Mail Zentrale
-
E-Mail Direkt
-
Tel. Zentrale
-
Mobil
-
Fax02602/2413
Objektdaten
-
Objekt ID4-2560
-
ObjekttypenDachgeschosswohnung, Wohnung
-
AdresseHohe Straße 2
56410 Montabaur -
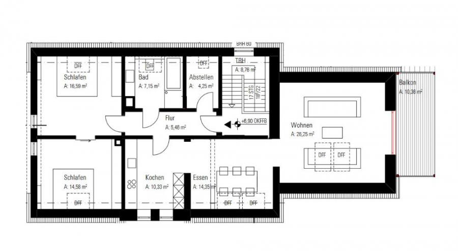
Wohnfläche ca.101 m²
-
Zimmer4
-
Zustandvollsaniert
-
StellplatzStellplatzmiete: 50 EUR
-
Kaltmiete1.190,00 EUR
-
Nebenkosten300,00 EUR
Ausstattung / Merkmale
- ✓ Außenstellplatz
Energieausweis
-
EnergieausweistypBedarfsausweis
-
Ausstellungsdatum24.04.2017
-
Gültig bis04-2027
-
Endenergiebedarf155,40 kWh/(m²·a)
-
EnergieeffizienzklasseE
Objektbeschreibung
Beschreibung
ENERGIEAUSWEIS
- Energieeffizienzklasse: E
- erstellt am: 24.04.2017
- gültig bis: 23.04.2027
- Art des Energieausweises: nach Bedarf
- Endenergiebedarf insgesamt: ca. 155,4 kWh/(m²a)
---------------
Objektnummer 1-2560: Montabaur, Altbau-Charme, saniert!:
-Dachgeschoss (2. Stock)
-ca. 101m² (Wohnzimmer, Esszimmer, 2 weitere Zimmer (davon ein "gefangener Raum"), Küche, Bad, Abstellraum)
-Balkon mit Schlossblick
-Abstellraum
-KFZ-Stellplatz (€ 50.- pro Monat)
-Einbauküche (€ 50.- pro Monat)
-leider keine Hundehaltung möglich
Kaltmiete: € 1.190.- + NK
Die Angaben erfolgen laut Auskunft Dritter. Die Prüfung der Angaben obliegt dem Mieter. Angebote erfolgen freibleibend und unverbindlich. Irrtum sowie Zwischenverkauf bzw. Zwischenvermietung bleiben vorbehalten.
Lassen Sie sich bei einer Besichtigung von dieser tollen Wohnung überzeugen. Ein Termin ist nach kurzer Rücksprache mit unserem Büro möglich.
Sonstiges
Immobilienvermittlungen, Gutachten und Beratungen sind die Schwerpunkte unseres Geschäfts. Zu unserem Service gehört eine kostenfreie Bewertung Ihrer Immobilie, die Erstellung eines Energieausweises und die professionelle Vermarktung. Wir bringen die Erfahrung aus über 50-jahriger Tätigkeit in der Region Montabaur ein. So finden wir vertrauensvolle und faire Lösungen, auch in den Verkaufsverhandlungen. Dies gilt sowohl für Käufer als auch für Verkäufer. Geschäftsinhaber Jürgen Schmitt ist DEKRA-zertifizierter Sachverständiger für Immobilienbewertung, öffentlich bestelltes Mitglied des Gutachterausschusses Westerwald-Taunus sowie Mitglied und ehrenamtlicher Preisberichterstatter im Immobilienverband Deutschland (ivd). Darüber hinaus sind unsere Maklerdienstleistungen DIN EN 15733 zertifiziert.
Lage
Die Wohnung befindet sich im " Aubachviertel" Hohe Straße 2, 56410 Montabaur. Es handelt sich um ein neu renoviertes, historisches Gebäude (Bahnhofshotel). Die zentrale Lage, die liebevolle Renovierung und das tolle Wohnambiente machen die Wohnung besonders attraktiv.
Der Wirtschaftsstandort Montabaur bietet als moderne Verkehrsdrehscheibe Mobilit auf allen Wegen. Für viele Unternehmen ist der Standort bereits jetzt ein logistischer Knotenpunkt in Flughafennähe. Optimale Erreichbarkeit durch:
direkte Anbindung an die Bundesautobahnen A3 / A48,
Europas Hochgeschwindigkeitsnetz durch den ICE-Bahnhof,
Busbahnhof, 230 Busse täglich,
Regionalbahnhof, 30 Züge täglich,
Anbindung an die Bundesstr. B255 / B49.
Die Innenstadt die unmittelbar vor der Haustür liegt, verfügt über erstklassige Fachgeschäfte sowie vielfältige Einkaufsmöglichkeiten.
Für Eltern ist es wichtig, Familie und Beruf gut miteinander vereinbaren zu können. Kindertagesstätten mit flexiblen Öffnungszeiten, ortsnahe Schulen, betreuende Grundschulen und die Ganztagsschule bieten hierzu eine ideale Unterstützung.
Hohe Straße 2, 56410 Montabaur, Deutschland (auf Google Maps ansehen)














